Mẫu biệt thự Cầu Đất đẹp 3 tầng hiện đại, trẻ trung.
Mẫu biệt thự Cầu Đất mang dáng vẻ hiện đại, lôi cuốn được KTS Auth tỉ mỉ thực hiện cho gia chủ.
Mẫu biệt thự Cầu Đất 3 tầng được thiết kế hiện đại, tạo nên một không gian sống sang trọng và đẳng cấp. Với kiến trúc độc đáo, nó mang đến sự hòa quyện tuyệt vời giữa phong cách hiện đại và sự tiện nghi.
Bên cạnh đó còn rất nhiều kiểu biệt thự như: MẪU BIỆT THỰ 2 TẦNG ĐÀ LẠT PHONG CÁCH TÂN CỔ ĐIỂN . Phương án thi công Biệt thự sân vườn mái thái tại Đà Lạt, Lâm Đồng . Thiết kế BIỆT THỰ NHÀ VƯỜN 2 TẦNG ĐẸP TẠI ĐỨC TRỌNG . Nhất là Mẫu nhà phố tân cổ điển 2 lầu 1 trệt tại Đức Trọng cũng được quan tâm rất nhiều gần đây.
Chúng tôi, Auth Corporation xin giới thiệu quý chủ đầu tư về dự án dưới đây. Hi vọng sẽ mang đến cho quý khách ý tưởng về mẫu biệt thự hiện đại ưng ý nhất.
Chúng tôi là công ty xin phép xây dựng uy tín tại Đà Lạt. Bên cạnh đó, còn có dịch vụ:
- xin phép xây dựng Lâm Hà
- Xin phép xây dựng Đức Trọng
- Xin phép xây dựng Đơn Dương
- Với dịch vụ xây nhà trọn gói – Chìa khóa trao tay tại các khu vực Lâm Đồng.
Khảo sát mặt bằng hiện trạng trước khi thiết kế biệt thự Cầu Đất
Trước khi thiết kế biệt thự Cầu Đất, việc khảo sát mặt bằng hiện trạng là một bước quan trọng. Nhằm để hiểu rõ về địa hình và điều kiện tự nhiên của khu vực.
Khảo sát này giúp xác định các yếu tố quan trọng. Như hướng, diện tích, cấu trúc đất, độ cao và khả năng khai thác của không gian đất.
Đầu tiên, đội ngũ KTS khảo sát sẽ tiến hành đo đạc diện tích và đường bao của khu đất.
Họ sử dụng công cụ và thiết bị chuyên dụng để xác định độ dốc của mặt đất. Còn có độ cao tương đối và độ chênh lệch giữa các khu vực khác nhau.
Điều này giúp xác định vị trí và hình dạng của biệt thự trong không gian tổng thể.
Tiếp theo, sẽ phân tích cấu trúc đất bằng cách lấy mẫu và kiểm tra chất lượng đất.
Điều này giúp đánh giá khả năng hỗ trợ và ổn định của mặt bằng. Đồng thời xác định những điểm mạnh và yếu để đưa ra các giải pháp xử lý và tối ưu hóa.
Ngoài ra, đội ngũ cũng quan tâm đến các yếu tố tự nhiên. Như hướng gió, ánh sáng mặt trời và cảnh quan xung quanh.
Điều này giúp họ đưa ra quyết định về vị trí các cửa sổ, ban công và khu vực ngoài trời. Nhằm để tận dụng tối đa ánh sáng tự nhiên và tầm nhìn đẹp.
Phương án thiết kế mặt bằng biệt thự Cầu Đất
Thiết kế biệt thự Cầu Đất hiện đại chinh phục mọi ánh nhìn bằng những đường nét tinh tế và tỉ mỉ.
Với nguyên liệu xây dựng chất lượng cao và màu sắc tươi sáng. Chúng hòa quyện hài hòa với môi trường xung quanh.
Phương án thiết kế kiến trúc biệt thự Cầu Đất mang trong mình vẻ đẹp tinh tế và hiện đại. tạo ra một không gian sống sang trọng và ấn tượng.
Với kiến trúc độc đáo, biệt thự được xây dựng với các đường nét mềm mại và tỉ mỉ. Tạo nên một tổng thể hài hòa và đồng nhất.






Mặt tiền của biệt thự thiết kế rộng rãi, với sự kết hợp hoàn hảo giữa kính và các vật liệu xây dựng chất lượng cao. Tạo nên một diện mạo hiện đại và ấn tượng.
Đơn giá thiết kế biệt thự hiện nay mà bạn cần biết
Mức chi phí thiết kế biệt thự sẽ phụ thuộc vào rất nhiều yếu tố. Bao gồm từ phong cách thiết kế, địa điểm, gói dịch vụ thiết kế và thời gian thi công thiết kế.
Việc lựa chọn vật tư, chất liệu để thi công cho toàn bộ thiết kế cũng sẽ mất khá nhiều thời gian.
Hiện nay mức giá trung bình cho đơn giá thiết kế biệt thự Đà Lạt như sau:
- Thiết kế kiến trúc hiện đại / tân cổ điển: 220.000 vnđ/m2
- Thiết kế kiến trúc cổ điển: 250.000 vnđ/m2
- Thiết kế nội thất biệt thự hiện đại và tân cổ điển: 250.000 vnđ/m2
- Thiết kế nội thất biệt thự cổ điển: 300.000 vnđ/m2
Đơn giá thi công biệt thự tại Đà Lạt cũng là điều được nhiều gia chủ quan tâm:
- Gói thi công biệt thự (phần hoàn thiện): 9.000.000 vnđ/m2 – 11.000.000 vnđ/m2


Xem thêm về: Đơn giá thiết kế và thi công nhà ở năm 2023
Đặc trưng về đường nét kiến trúc của thiết kế biệt thự Cầu Đất
Mẫu biệt thự mái thái 3 tầng hiện đại là một sự kết hợp hoàn hảo giữa phong cách truyền thống của mái thái và sự hiện đại của thiết kế kiến trúc.
Với đường nét kiến trúc mềm mại và tinh tế, mang đến một diện mạo đẹp mắt và thanh lịch.
Mái thái truyền thống được thiết kế với các đường cong mềm mại và các góc cạnh được làm mịn. Điều này tạo ra một sự cân đối và hài hòa.




Sự kết hợp giữa phong cách truyền thống và hiện đại. Tạo nên một không gian sống lý tưởng, kết hợp giữa tính thẩm mỹ và tiện ích
KTS Auth quan tâm nhiều đến yếu tố không gian mở trong thiết kế
Yếu tố không gian mở trong thiết kế biệt thự Cầu Đất được chú trọng nhiều trong từng thiết kế. Bởi nó tạo ra một môi trường sống rộng rãi, thoáng đãng với thiên nhiên.
Với sự tận dụng tối đa ánh sáng tự nhiên và tầm nhìn đẹp, không gian mở trong biệt thự Cầu Đất. Mang đến cảm giác rộng lớn và thông thoáng











Các cửa sổ lớn và cửa đi kính trong biệt thự cho phép ánh sáng tự nhiên lan tỏa vào từ mọi góc độ. Tạo ra không gian sống sáng và tươi mới.
Đồng thời, chúng cũng tạo điểm nhấn cho cảnh quan xanh mát bên ngoài. Và kết nối mạnh mẽ giữa không gian trong nhà và ngoài trời.
Điểm nhấn màu sắc trong thiết kế
Màu sắc được lựa chọn cho biệt thự Cầu Đất thường là những gam màu trung tính và tự nhiên.
Màu trắng tạo ra một không gian sạch sẽ và tinh tế, đồng thời làm nổi bật các chi tiết kiến trúc và nội thất.
Màu nâu tạo ra sự ấm áp và mộc mạc, mang lại sự gắn kết với tự nhiên.




Các yếu tố màu sắc cũng được sử dụng để tạo điểm nhấn và tạo sự tương phản trong thiết kế.
Một số điểm nhấn màu sắc như sử dụng màu đen cho cửa sổ, cánh cửa.
Yếu tố vật liệu sử dụng trong thiết kế
Trong thiết kế biệt thự Cầu Đất, các chất liệu được lựa chọn đều có tính chất hiện đại và chất lượng cao.




Đá là một chất liệu được sử dụng rộng rãi trong việc tạo điểm nhấn , sự sang trọng cho không gian. Đá cũng được sử dụng để tạo các thành phần kiến trúc ngoại thất.
Kính là một chất liệu phổ biến trong thiết kế biệt thự Cầu Đất, mang đến cảm giác hiện đại và sự thông thoáng. Cửa kính lớn và cửa sổ cung cấp không gian rộng rãi và tầm nhìn tuyệt đẹp.








Ngoài ra, còn có các chất liệu hiện đại khác cũng được sử dụng. Như thép, nhôm và composite trong việc tạo cấu trúc và phần ngoại thất của biệt thự Cầu Đất.
Các chất liệu này mang lại sự chắc chắn, bền vững và tạo nên các đường nét kiến trúc hiện đại và tinh tế.
Yếu tố không gian sống trong mẫu biệt thự cầu đất
Với diện tích rộng rãi, không gian sống trong biệt thự Cầu Đất được tối ưu hóa để mang đến sự thoáng đãng và tổ chức hợp lý.
Mỗi tầng được thiết kế với các khu vực chức năng riêng biệt. Như phòng khách, phòng ăn, phòng ngủ và phòng làm việc.
Thiết kế trên đảm bảo sự riêng tư và tiện nghi cho cả gia đình.




Không gian sống được thiết kế mở, liên thông và tận dụng ánh sáng tự nhiên. Thiết kế mang đến không gian sống tươi mới và gần gũi với
Thiết kế mái thái mang dấu ấn hoài niệm và thanh lịch
Mái thái của biệt thự được xây dựng theo phong cách truyền thống với một số nét hiện đại kết hợp. Điều này tạo nên một không gian sống độc đáo và đầy thu hút.




Mái thái của biệt thự Cầu Đất được xây dựng với những đường nét tinh tế và kiến trúc cắt cạnh sắc sảo. Mang đến vẻ đẹp hiện đại và sang trọng.
Màu sắc chủ đạo của mái thái là màu trắng, kết hợp mái ngói màu nâu. Tôn lên sự tinh khiết và thanh lịch của ngôi nhà.
Khuôn viên sân vườn trong mẫu biệt thự Cầu Đất
Khuôn viên sân của biệt thự Cầu Đất được bố trí một cách hợp lý và tận dụng tối đa diện tích sẵn có.
Cây xanh và cảnh quan tự nhiên được đặt ở các vị trí chiến lược. Tạo nên không gian xanh mát và tạo bóng mát cho khu vực xung quanh.



Sân được trải bằng cỏ tự nhiên, tạo ra một bề mặt êm ái và dễ dàng trong việc sử dụng.
Thiết kế đá ốp chân tường sang trọng
Đá ốp chân tường của biệt thự Cầu Đất được lựa chọn từ các loại đá tự nhiên cao cấp. Mang đến vẻ đẹp tự nhiên và độ bền lâu dài.
Mỗi viên đá được cắt tỉa tỉ mỉ và đặt với sự chính xác và sắc nét, tạo nên một bề mặt màu sắc và kết cấu tuyệt đẹp.
Đá ốp chân tường có thể được sử dụng cho một phần của ngôi nhà. Mang đến sự đối lập và phong cách riêng biệt.





Bậc tam cấp của biệt thự Cầu Đất được thiết kế với sự cân đối và tinh tế. Thiết kế tạo nên một lối đi sang trọng và an toàn cho biệt thự.







Bậc cầu thang có thể được trải đá tự nhiên. Đồng thời mang đến một cảm giác ấm áp và tinh tế cho không gian nội thất.
Các tiêu chí cơ bản trong thiết kế biệt thự Cầu Đất
Không gian xanh trong thiết kế biệt thự
Khi thiết kế không gian xanh, KTS Auth chú trọng vào việc tạo ra các khu vườn và cảnh quan xanh mát.
Cây xanh và cây bụi được trồng và bố trí một cách cân đối và hài hòa trên khuôn viên sân. Quy hoạch trên tạo nên bức tranh xanh tươi và mang đến không gian mát mẻ.
Tiêu chí thiết kế nội - ngoại thất căn biệt thự Cầu Đất
Sự cân đối giữa sự thoải mái và thẩm mỹ của nội ngoại thất.
Cùng với sự chú trọng vào chất lượng và tính tiện dụng. Chính là những yếu tố quan trọng được xem trọng trong quá trình thiết kế.



Ngoại thất của biệt thự Cầu Đất được thiết kế với sự cân đối và tương tác với thiên nhiên. Sân vườn xanh mát và khu vực ngoài trời được bố trí để tận hưởng không gian tự nhiên.
Nội thất của biệt thự Cầu Đất được thiết kế với sự tinh tế và sắc sảo.
nội thất tạo nên một không gian sang trọng và đẳng cấp. Các chi tiết và hoa văn được thiết kế tỉ mỉ.


Sự cân đối giữa các yếu tố này tạo nên một không gian sống đẳng cấp.
Và đáp ứng được yêu cầu 1 khu vực kinh doanh cho gia chủ tại tầng trệt.
Tiêu chí về mặt bằng công năng trong thiết kế
Thiết kế mặt bằng công năng được xem trọng để tối ưu hóa sự sắp xếp các không gian.
Mặt bằng công năng của biệt thự Cầu Đất được xây dựng dựa trên nguyên tắc sắp xếp hợp lý và linh hoạt.



Các không gian sống chính như phòng khách, phòng ăn và nhà bếp được thiết kế để tạo sự liên kết và thông thoáng.
Các phòng ngủ và phòng tắm cũng được bố trí một cách hợp lý và tận dụng tối đa không gian.



Từ việc sắp xếp bố trí và lựa chọn nội thất mọi chi tiết đều được xem xét để tạo nên không gian linh hoạt và đa năng.
Tiêu chí về phong thủy trong thiết kế
Sự chú trọng vào phong thủy trong thiết kế đảm bảo rằng không chỉ vẻ đẹp mỹ quan mà còn có sự cân đối. Và đảm bảo sự lưu thông năng lượng tích cực trong không gian.


Khi thiết kế biệt thự Cầu Đất, yếu tố phong thủy được xem xét từ việc lựa chọn hướng nhà, cách bố trí các phòng, đến sử dụng màu sắc và vật liệu.
Hướng nhà được chọn sao cho thu hút ánh sáng tự nhiên và luồng gió tốt. Nhằm mục đích tạo ra không gian thoáng đãng và kết nối với môi trường xung quanh.
Hồ sơ thiết kế Biệt thự Cầu Đất 3 tầng hiện đại
Mặt bằng thiết kế của biệt thự Cầu Đất
Thiết kế mặt bằng tầng hầm thành các phòng cho thuê
Trong thiết kế của biệt thự Cầu Đất hiện đại, tầng hầm có thể được chuyển đổi thành các phòng cho thuê. Mang lại tiềm năng kinh doanh và sử dụng không gian một cách hiệu quả.


Mỗi phòng được bố trí sao cho có không gian riêng tư và tiện nghi. Bao gồm một khu vực nghỉ ngơi, phòng tắm riêng và một không gian nhỏ để nấu ăn đơn giản.
Nội thất và trang thiết bị được lựa chọn kỹ lưỡng, mang đến cảm giác sang trọng và chất lượng cao.
Thiết kế mặt bằng tầng trệt với 1 phần làm văn phòng kinh doanh và ở
Tầng trệt được thiết kế thành hai khu vực chính: khu vực ở và khu vực kinh doanh. Đáp ứng sự linh hoạt và tối ưu hóa sử dụng không gian của gia chủ.
Khu vực ở trên tầng trệt được thiết kế gồm các phòng khách, phòng ăn và bếp. Khu vực này được bố trí sao cho tạo cảm giác rộng rãi và kết nối với không gian ngoại thất.


Khu vực kinh doanh trên tầng trệt được thiết kế để tận dụng không gian và mang lại tiềm năng kinh doanh.
Đồng thời, sự chú trọng đến thiết kế nội thất và không gian thông thoáng. Giúp mang lại không gian chuyên nghiệp và thu hút khách hàng.
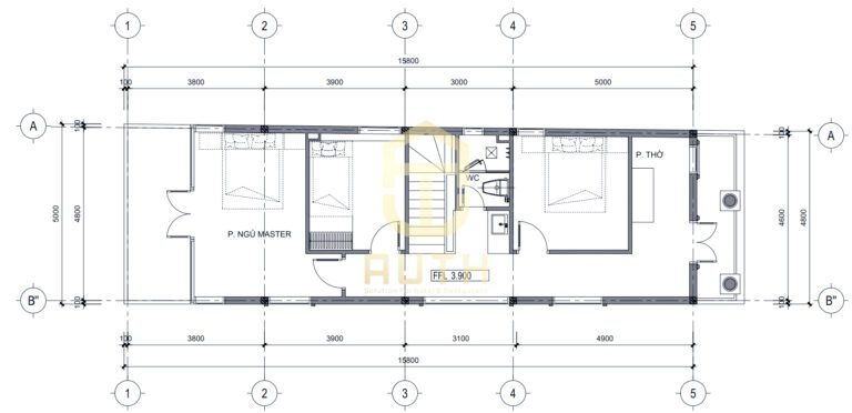
Khu vực tầng lầu với công năng hợp lí
Với sự tối giản và sáng tạo, tầng lầu này được xây dựng với 3 phòng ngủ, 1 phòng WC chung và 1 phòng thờ.
Thiết kế nhắm tới mục tiêu 1 môi trường ấm cúng và thoải mái cho gia đình.



Tất cả các phòng được kết hợp với nhau một cách hài hòa và thẩm mỹ.
Một hành lang rộng và chiếu sáng tự nhiên kết nối các phòng với nhau. Tạo ra một không gian mở và thông thoáng.
Khu vực tầng mái
Tầng mái của mẫu biệt thự Cầu Đất hiện đại được thiết kế một cách thông minh và tiên tiến.
Với sự tích hợp nhiều công nghệ xanh nhằm tối ưu hóa sử dụng năng lượng và nước.



Trước tiên, hệ thống bình nước năng lượng mặt trời là một phần quan trọng trong thiết kế tầng mái. Hệ thống này không chỉ giúp giảm thiểu và tiết kiệm chi phí, sự phụ thuộc vào nguồn năng lượng truyền thống.
Kế tiếp, tầng mái cũng có khu vực lỗ thăm, được thiết kế để thu thập, lọc và xử lí nước mưa. Và đưa vào hệ thống chứa nước nhằm tái sử dụng, giúp điều hòa căn nhà.
Cuối cùng, là máy bơm tăng áp, đóng vai trò quan trọng trong đảm bảo áp lực nước cho toàn bộ ngôi nhà. Điều này đảm bảo các tầng đều có đủ áp lực nước cần thiết để sử dụng một cách thoải mái và tiện lợi.
Hồ sơ thiết kế kiến trúc mẫu Biệt thự Cầu Đất
Hồ sơ thiết kế kiến trúc của biệt thự Cầu Đất là một tài liệu tổng hợp chi tiết. Bao gồm về bản vẽ mặt bằng, mặt cắt, mặt đứng và các phối cảnh.
Hồ sơ thiết kế kiến trúc thường bao gồm các yếu tố sau:
Bản vẽ mặt bằng: Đây là bản vẽ chi tiết về mặt bằng tổng thể của biệt thự. Nó bao gồm vị trí của các tầng, các phòng chính, các khu vực chung và các hệ thống khác. Như điện, nước, và hệ thống thông gió. Bản vẽ mặt bằng cung cấp cái nhìn tổng quan về cấu trúc và sắp xếp của ngôi nhà.
Bản vẽ kiến trúc: Bản vẽ này chi tiết hóa các yếu tố kiến trúc của ngôi nhà. Bao gồm các chi tiết về bức tường, cửa sổ, cửa chính,… Nó thể hiện phong cách và thiết kế nội ngoại thất của biệt thự.
Bản vẽ kỹ thuật: Đây là bản vẽ chi tiết về cấu trúc và các yếu tố kỹ thuật khác của ngôi nhà. Nó bao gồm thông tin về vật liệu, kích thước, chi tiết xây dựng. Còn có hệ thống điện, nước, hệ thống thông gió, và các yếu tố kỹ thuật khác. Bản vẽ kỹ thuật giúp đội thi công và các nhà thầu khác có thể hiểu và xây dựng theo đúng yêu cầu.
Bảng thông số kỹ thuật: Đây là tài liệu cung cấp thông tin chi tiết về các vật liệu, công nghệ, tiêu chuẩn. Và quy định áp dụng trong thiết kế và xây dựng của biệt thự. Bảng này thường bao gồm: các thông số về cường độ vật liệu, khả năng chịu tải, cách nhiệt, cách âm. Và các yếu tố khác liên quan đến chất lượng và hiệu suất của ngôi nhà.


Hồ sơ kết cấu mẫu biệt thự cầu đất
Hồ sơ phần kết cấu bao gồm bản vẽ kỹ thuật chi tiết về cấu trúc và bố trí của ngôi nhà.
Bản vẽ này mô tả cách các thành phần kết cấu, bao gồm:
- Bản vẽ mặt bằng móng, chi tiết móng, chi tiết kết cấu cột, mặt bằng định vị cột.
- Kết cấu tường, sàn, trần, cột và dầm. Được kết hợp với nhau để tạo nên một ngôi nhà vững chắc và ổn định.
Bản vẽ kỹ thuật cũng cung cấp thông tin về kích thước, chi tiết nối … Giúp đảm bảo tính cân đối và chính xác trong quá trình xây dựng
Hồ sơ phần điện
Hồ sơ phần điện của biệt thự là một phần quan trọng trong hồ sơ thiết kế. Bao gồm: các thông tin và bản vẽ liên quan đến hệ thống điện. Còn có hệ thống ánh sáng, internet, điện thoại, ổ cắm…
Hồ sơ phần điện cũng bao gồm bảng tính toán và danh sách vật tư điện.
Bảng tính toán cung cấp thông tin về công suất điện tiêu thụ dự kiến và dòng điện của từng thiết bị và hệ thống trong ngôi nhà.
Hồ sơ phần nước thiết kế biệt thự Cầu Đất
Hồ sơ phần hệ thống nước là một phần quan trọng trong quá trình thiết kế và xây dựng. Bao gồm: các thông tin và bản vẽ liên quan đến hệ thống cấp nước và thoát nước trong ngôi nhà.
Hồ sơ phần hệ thống nước cũng bao gồm các bảng mô tả về các loại vật liệu và thiết bị được sử dụng.
Nếu cần tư vấn, hỗ trợ , xin Quý khách hàng liên hệ Bộ phận CSKH của Auth corporation.
Văn phòng tại chi nhánh Đà Lạt:
hotline: 0967 4747 52 Hoặc liên hệ trực tiếp với kiến trúc sư auth : 0948 122 124
Địa chỉ tại: b10, khu quy hoạch ngô quyền, phường 6, đà lạt, lâm đồng























